Baugrundstück mit positiv beschiedenem Bauvorbescheid für 11 Wohnungen + TG
Eckdaten
- Art Baugrund für Mehrfamilienhäuser
- Lage 83022 Rosenheim
- Kaufpreis 1.360.000,00 €
- Grundstück ca. 680 m²
- Bezugstermin sofort
- Bebaubar nach Nachbarbebauung
- Kurzfristig bebaubar ja
- Immobilien-ID 144836191
- Provision 3,57% inkl. MwSt.
Immobilie
Baugrundstück mit Altbestand in äußerst attraktiver Lage in Rosenheim mit positiv beschiedenem Bauvorbescheid:
– Grundstücksfläche: 680 m²
– Abmessung: ca. 20 m x 34 m
Bauplanung:
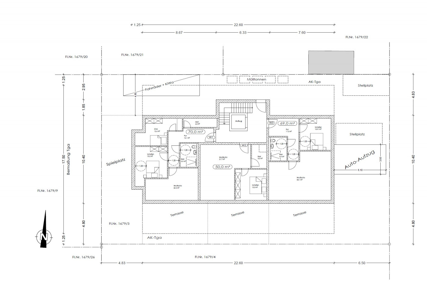
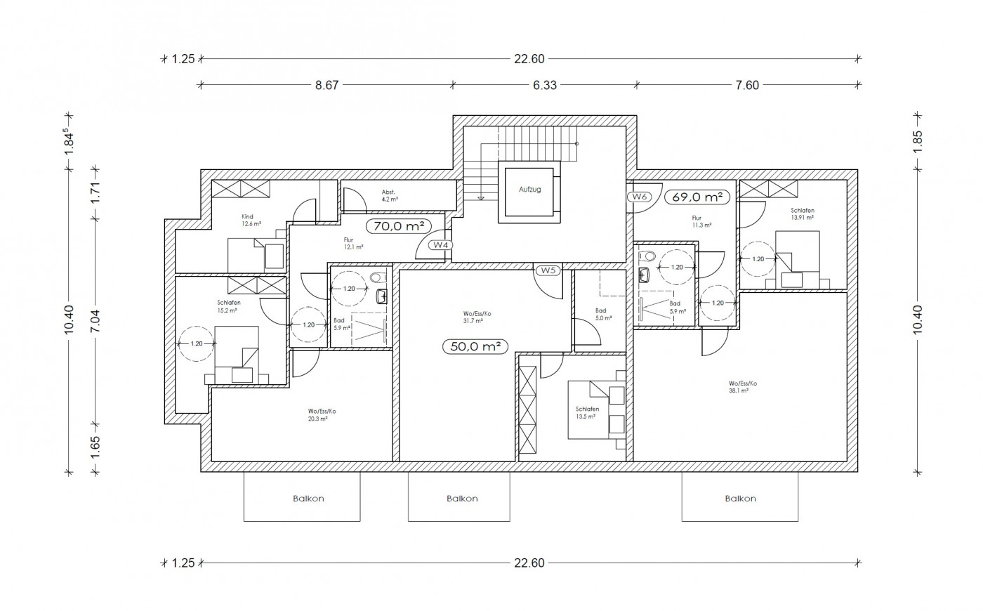
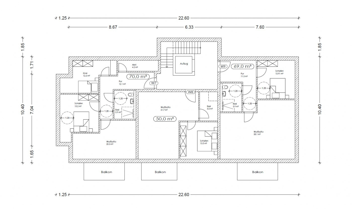
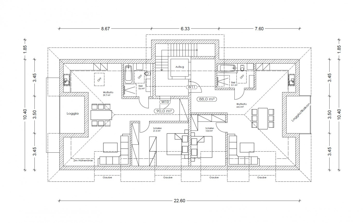
– Mehrfamilienhaus mit 4 Vollgeschossen und Tiefgarage
– Walmdach mit 35°
– 11 Wohnungen mit Balkon oder Terrasse
– EG, 1. OG und 2. OG: jeweils 3 Wohnungen mit 50, 69 bzw. 70 m²
– DG: 2 Wohnungen mit 88 bzw. 90 m²
– Geplante Wohnfläche insgesamt: 746,2 m²
– 13 Tiefgaragenstellplätze und Auto-Aufzug
– 2 Außenstellplätze (Errichtung 2 weiterer Stellplätze laut Bauvoranfrage sind einzuplanen)
Lage
MAKROLAGE
Lage & Erreichbarkeit
Rosenheim, drittgrößte Stadt in Oberbayern, liegt malerisch zwischen München (ca. 60 km) und Salzburg (ca. 85 km). Dank der ausgezeichneten Verkehrsanbindung über die A8 (München–Salzburg) und die B15 bzw. B304 sowie die Zugverbindungen nach München, Salzburg, Innsbruck und Kufstein gilt Rosenheim als beliebter Standort für München-Pendler.
Die Stadt mit ihrem historischem Altstadtkern bietet ihren 64.000 Einwohnern nicht nur eine hohe Lebensqualität als Wirtschafts- und Hochschulstandort (TH Rosenheim) im Bereich Maschinenbau, Holzverarbeitung, IT und Tourismus, sondern auch vielseitige Freizeitmöglichkeiten Richtung Alpen und Österreich.
MIKROLAGE
Das Grundstück befindet sich direkt im Rosenheimer Stadtgebiet, in Rosenheim-West, westlich der Rosenheimer Innenstadt in einer ruhigen Wohngegend. Die Umgebung wird geprägt von Altbauwohnungen & sanierten Stadthäusern, Neubauten & modernen Wohnanlagen. Dank der Nähe zur Innenstadt bzw. Fußgängerzone ist die Erreichbarkeit von Ärzten, Apotheken, Schulen und Kitas genauso gesichert, wie die von vielseitigen Einkaufsmöglichkeiten, Gastronomie und Kultur.
Der öffentliche Nahverkehr ist gut ausgebaut: Die Buslinie 404 bzw. 424 sind in wenigen Gehminuten erreicht. Der Rosenheimer Bahnhof ist zu Fuß in ca. 15 Minuten erreicht und liegt somit ideal für Pendler. Die Luitpoldhalle ist in unter 10 Minuten fußläufig erreichbar.
Herzlichen Dank für Ihre Anfrage.
Wir werden diese so schnell wie möglich bearbeiten.







