Einmalige Investmentmöglichkeit: Hotelanlage und Apartmenthaus mit Potenzial
Eckdaten
- Art Hotel garni
- Lage 81379 München
- Kaufpreis 6.950.000,00 €
- Baujahr 1985
- Gesamtfläche ca. 1.492 m²
- Stellplatztyp Tiefgarage
- Vermietet nein
- Bezugstermin 2026
- Fahrzeit Hauptbahnhof 20 min
- Fahrzeit nächster Flughafen 45 min
- Zustand Gepflegt
- Immobilien-ID 144836275
Immobilie
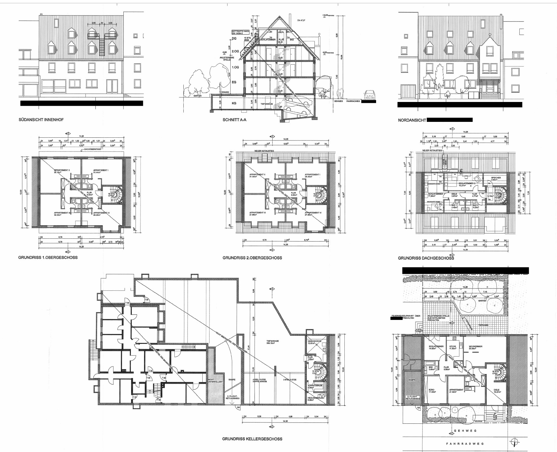
Wir bieten hier ein ab 2026 betreiberfreies Hotel und Apartmenthaus auf einem Grundstück mit ca. 1064 m² in verkehrsgünstiger Lage im Münchner Süden. Auf knapp 1100m² Gewerbefläche können hier nahezu alle Konzepte der gewerblichen Zimmervermietung realisiert werden. Ob es weiterhin als Hotel und Apartmenthaus geführt wird, oder durch smarte/digitale Lösungen wie Airbnb oder auch Arbeiterwohnen modernisiert wird, einem zukünftigen Käufer stehen hier viele Möglichkeiten offen. Das Gebäude wurde laufend renoviert und in mehreren Bauphasen (1959 – Mitte 1970er – 2000) immer wieder erweitert, um sich den sich ändernden Bedürfnissen anzupassen.
2022 wurden in beiden Häusern neue Heizungsanlagen eingebaut.
Ein absoluter Pluspunkt neben der eigenen Tiefgarage ist die fußläufig nur 3 Minuten entfernte U-Bahn.
Hotel: ca. 523 m² zzgl. Keller/Tiefgarage und 2. Dachgeschoss mit 36 Zimmern, überwiegend Einzel- und Doppelzimmer. Weiteres Ausbaupotenzial im 2. Dachgeschoss vorhanden. Klassisches Garni-Konzept mit Frühstücksangebot. Sowohl die Gebäudesubstanz wie auch die oberirdische Stellplatzsituation können zukünftig noch erweitert werden.
Apartmenthaus: ca. 457 m² zzgl. Keller/Tiefgarage mit aktuell 8 Apartments und zwei separaten Zimmern. Möblierte Einheiten mit Küche, vorwiegend für Langzeitgäste (Monatsmieter, Monteure, Firmenangehörige).
Stellplätze: hoteleigene Parkmöglichkeiten in der Tiefgarage sind vorhanden, bestehend aus Einzel- und Duplexstellplätzen.
Keller: Nutzfläche für Wellnessbereich, Waschküche, Vorratsräume, Heizung etc.
Lage
München zählt zu den stärksten Hotel- und Gewerbemärkten Deutschlands, mit hoher Nachfrage nach kurzfristigen wie auch langfristigen Übernachtungsmöglichkeiten.
Obersendling/Thalkirchen ist geprägt von einem gesunden Mix aus Wohn- und Gewerbeeinheiten. Bedeutende Unternehmensstandorte (u. a. Siemens-Areal, Technologie- und Dienstleistungsunternehmen) schaffen kontinuierlichen Bedarf für Geschäftsreisen und Monteurunterkünfte.
Verkehrsanbindung: hervorragende Erreichbarkeit über den Mittleren Ring, A95/A96 sowie den Öffentlichen Nahverkehr: Die nächstgelegene U-Bahn-Haltestelle ist die U3 Machtlfinger Straße (500 m, ca. 5 Gehminuten), gefolgt von der Aidenbachstraße (930 m, ca. 12 Gehminuten). Sie erreichen das Stadtzentrum, den Marienplatz in ca. 25 Minuten.
Die Buslinien 51, 63, 136 und N41 sind alle in unter 10 Minuten fußläufig erreichbar.
Auch die Anbindung an den Flughafen München über die A95 ist schnell: mit dem Auto benötigen Sie ca. 45 Minuten, mit der MVV ca. 70 Minuten. Für Business- und Privatjet-Flüge steht auch der Oberpfaffenhofen Airport in ca. 30 Minuten Entfernung zur Verfügung.
An die S-Bahn bzw. DB sind Sie über die Haltestellen Siemenswerke und Solln – in jeweils unter 10 Minuten mit dem Auto – angebunden.
In der näheren Umgebung finden sich diverse Einkaufsmöglichkeiten und alle Geschäfte des täglichen Bedarfs:
– Lidl, dm, Fressnapf und Fitnessstudio: ca. 5 Gehminuten
– Einkaufscentrum SÜD CENTER: ca. 6 Gehminuten
– SÜDWINK Einzelhandel: ca. 8 Gehminuten
– hagebaumarkt & Gartencenter München Süd: ca. 4 Autominuten
– MediaMarkt: ca. 4 Autominuten
– Einkaufscentrum Kaufring Fürstenried: ca. 5 Autominuten
Cafés, Bäckereien, Bistros und Restaurants liegen in fußläufiger Nachbarschaft und sorgen für abwechslungsreiche kulinarische Erlebnisse.
Diverse Arztpraxen und Apotheken im fußläufigen Umfeld komplettieren das Angebot.
Ausstattung
– Einzelzimmer mit Duschbad
– Doppelzimmer mit Duschbad
– Apartmenthaus mit 8 Apartments und 2 separaten Zimmern
– 339 m² Tiefgarage
– Frühstücksraum
Sonstiges
Investitionsargumente:
-Diversifizierte Ertragsbasis: Hotelbetrieb (Kurzzeitgäste) und Apartmentvermietung (Langzeitgäste) sichern planbare Cashflows.
-Langfristige Nachfrage: durch Firmencluster im Umfeld besteht ein stabiler Bedarf nach temporären Unterkünften.
-Nachhaltigkeit: Die Kombination von klassischen Hotelzimmern und Appartements reduziert Saisonalität und Leerstandsrisiken.
-Potenzial: Modernisierungs- und Erweiterungsoptionen (z. B. digitale Services, zusätzliche Stellplätze, Ausbau des Apartmentangebots und der Gastronomie) eröffnen Wertsteigerungschancen.
Herzlichen Dank für Ihre Anfrage.
Wir werden diese so schnell wie möglich bearbeiten.



































