Wohn- und Geschäftshaus im Herzen von Gauting
Eckdaten
- Art Spezialobjekt
- Lage 82131 Gauting
- Kaufpreis 9.000.000,00 €
- Grundstück ca. 2.083 m²
- Gewerbefläche ca. 1.599 m²
- Baujahr 1978
- Gesamtfläche ca. 2.381 m²
- Etagenzahl 4
- Heizungsart Gas-Heizung
- Stellplatztyp Garage
- Stellplatzanzahl 32
- Vermietet ja
- Aufzug nein
- Zustand Saniert
- Immobilien-ID 144836249
- Provision 3,57% inkl. MwSt.
Immobilie
Das gepflegte Gebäude mit Mischnutzung verfügt über 10 Wohneinheiten, eine 1-Zimmer-Wohnung, drei 2-Zimmer-Wohnungen bzw. sechs 3-Zimmer-Wohnungen, sowie 10 Gewerbeeinheiten, z.B. Gaststätte, Supermarkt, Ladenlokal, Architekturbüro sowie 36 TG-Stellplätze. Direkt hinter dem Gebäude gibt es öffentliche Parkplätze die für 2 Stunden (mit Parkscheibe) frei genutzt werden können.
Die aktuellen monatlichen Mieteinnahmen belaufen sich auf ca. 35.000€/Monat.
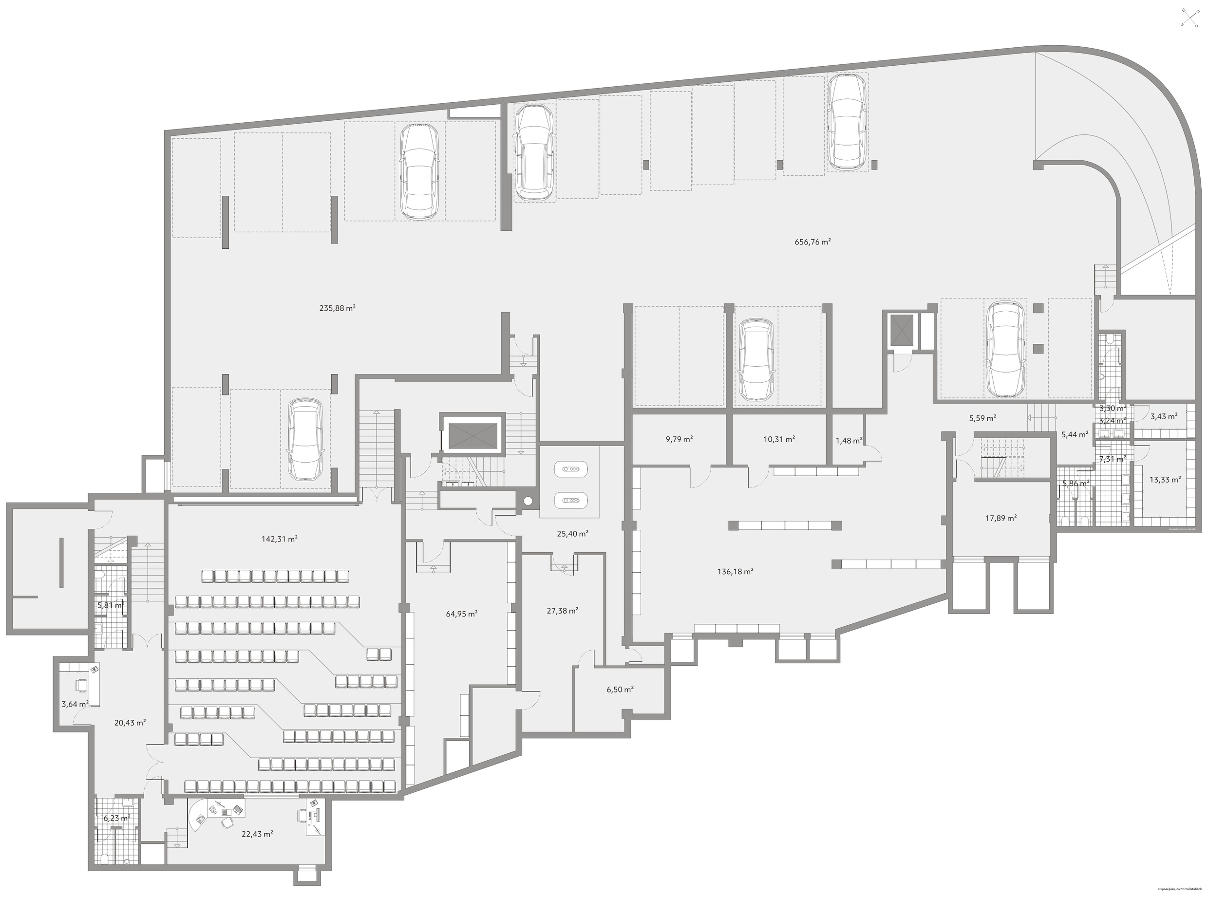
Erdgeschoss
Im Erdgeschoss dieses Wohn- und Geschäftsgebäudes befindet sich in bester Sichtlage ein Lebensmittelmarkt mit ca. 468 m² Verkaufsfläche zzgl. ca. 78 m² Personal- und Lagerräume. Hinter der Verkaufsabteilung finden sich ein separater Anlieferungsraum nebst eines hydraulischen Lastenaufzugs, welcher das Untergeschoss mit dem Erdgeschoss verbindet.
Des Weiteren sind ein zusätzlicher Personalraum, ein Lagerraum und ein Zerlege- und Vorbereitungsraum für die Verarbeitung und Vorbereitung der Fleisch- und Wurstwaren vorhanden. Auch ein kleines Restaurant mit ca. 70 m² großem Gastraum zzgl. Küchen- und Personalfläche befindet sich auf dieser Etage.
Untergeschoss
Im Untergeschoss befinden sich 18 Einzelstellplätze, 8 davon gehören zu dem im EG befindlichen Supermarkt, zusätzlich sind 18 Duplex-Parker u.a. für die Mieter der Wohnungen vorhanden.
Es ist über ein innenliegendes Treppenhaus und einen eigenen Aufzug mit dem im EG befindlichen Supermarkt direkt verbunden. Hier befinden sich zwei separate Toiletten und zwei separate Umkleideräume für die Angestellten.
Neben dem großzügigen Lager auf ca. 152 m², gibt es einen Tiefkühlraum (ca. 9,96 m²), Kühlraum (ca. 10,34 m²), Waschraum/Kammer (ca. 3,68 m²), als auch einen Raum für die Kühlmaschinen (ca. 17,89 m²). Auch ein ehemaliger Kinosaal (entkernt, ca. 162,31 m²) ist vorhanden, welcher zuletzt als Lagerfläche genutzt wurde.
1. OG
Im 1. OG befinden sich 6 Ladenlokale mit großen Fensterflächen sowohl Richtung Straße als auch Richtung der Passage um so möglichst viel Dekorationsfläche zu schaffen und Kundschaft anzulocken.
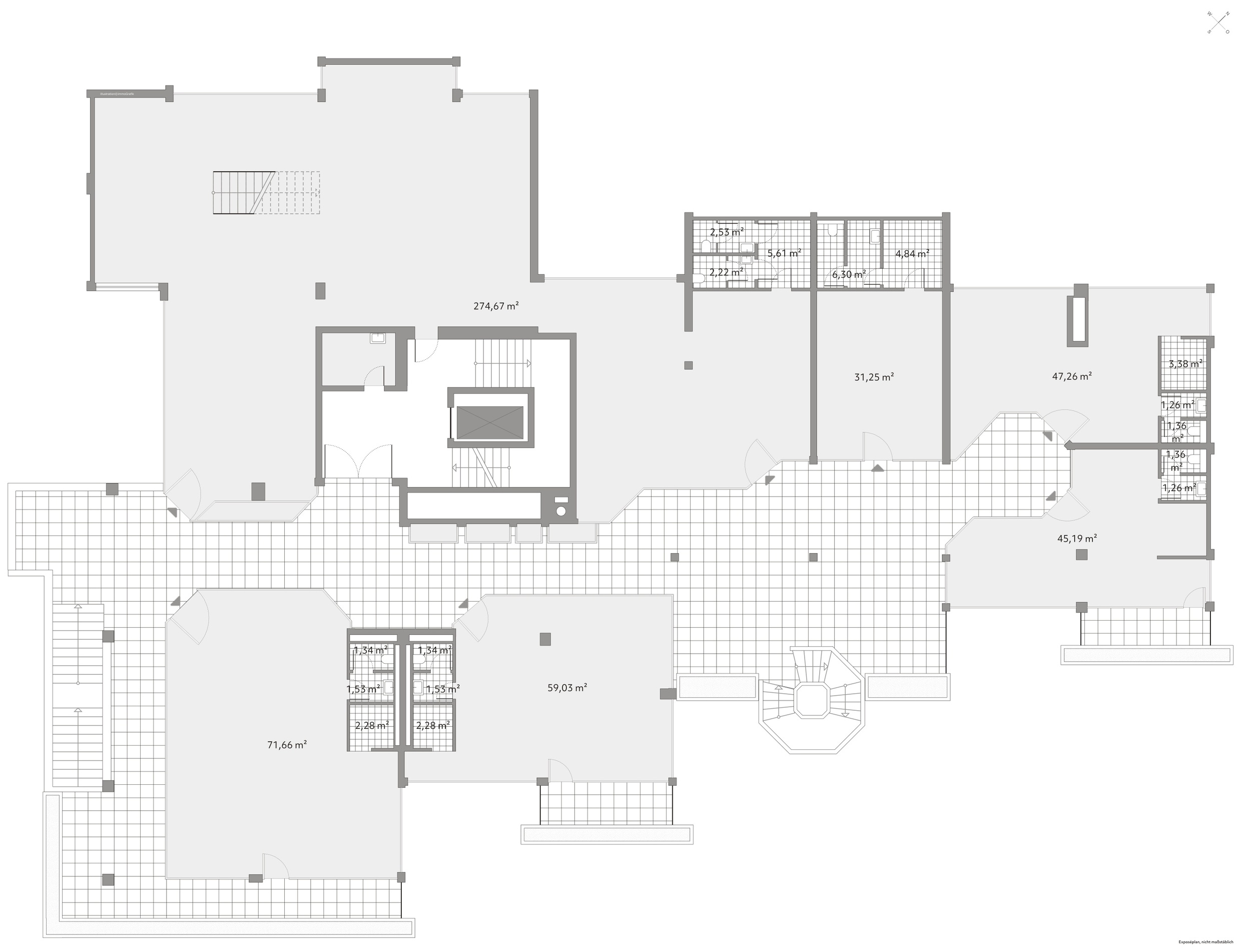
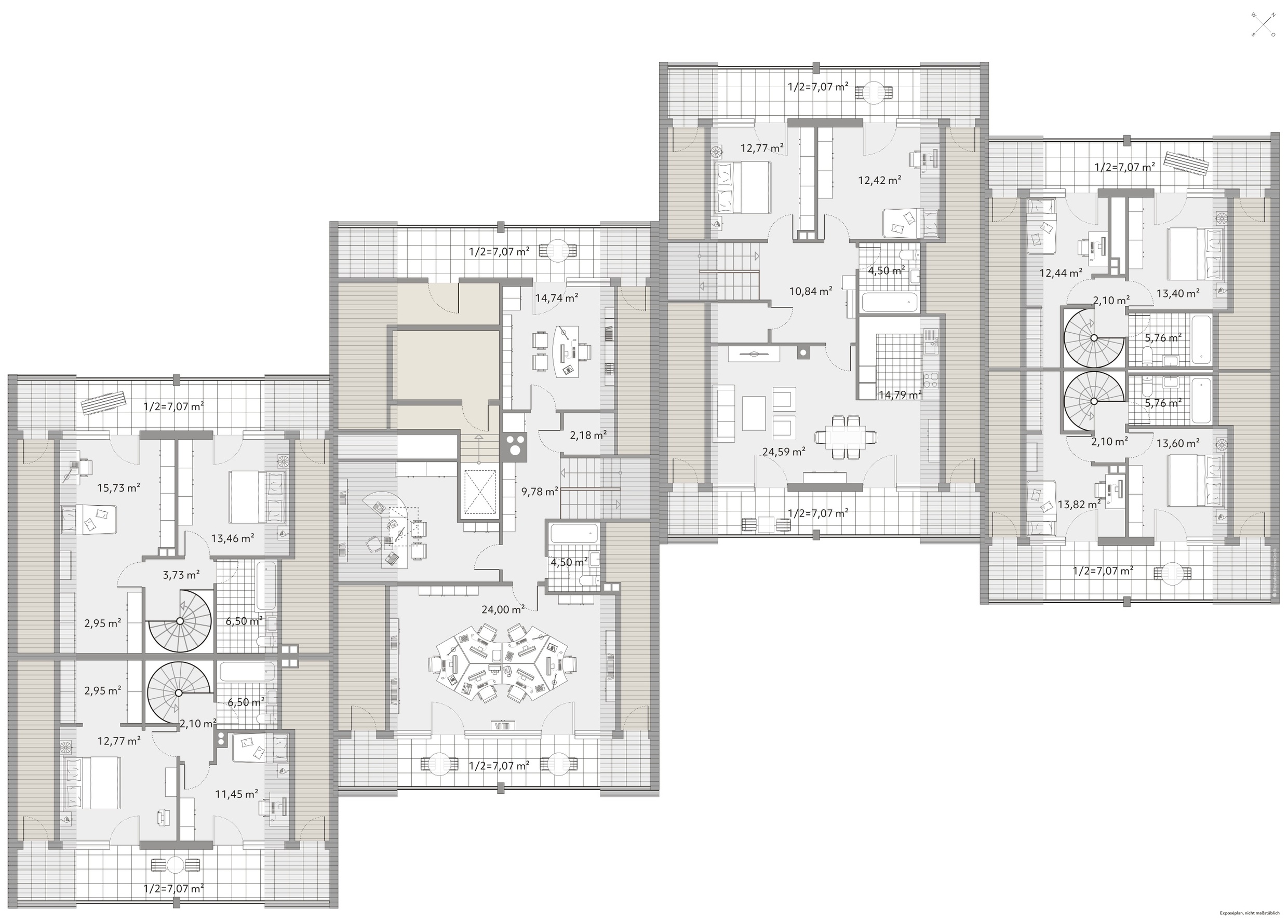
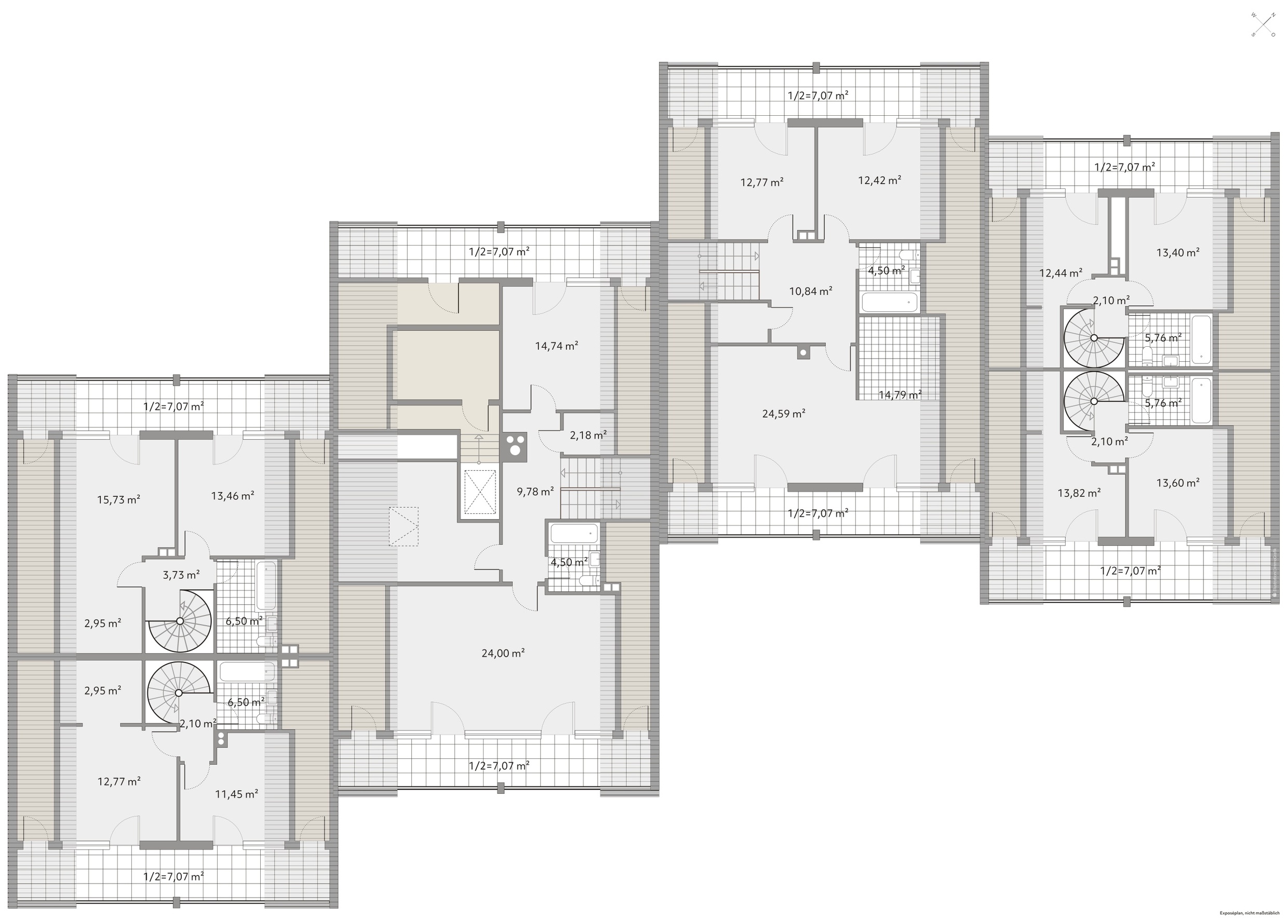
2. OG und DG
In den beiden obersten Etagen befinden sich die Mietwohnungen. Im 2. OG befinden sich die Wohnungen, bei denen es sich größtenteils um 1- bis 3-Zimmer Maisonette-Wohnungen handelt.
Die Immobilie wurde vor einigen Jahren umfangreich saniert und macht einen sehr gepflegten Gesamteindruck.
Lage
Die Immobilie liegt im Ortszentrum von Gauting, direkt am zentralen Platz der Gemeinde (mit Gastronomie- und Dienstleistungsnutzung an der Adresse). Gauting ist eine bevölkerungsstarke Vorortgemeinde südwestlich von München mit sehr guter Anbindung an die Landeshauptstadt und eine stabile lokale Wirtschaft.
MAKROANALYSE | Regionale Rahmenbedingungen
Lage / Erreichbarkeit
Gauting liegt im Münchner Umland (ca. 17–20 km Luft-/Straßenentfernung nach München), gut erreichbar per S-Bahn/Regionalverkehr und Auto — die Zugfahrt nach München dauert typischerweise rund 25–30 Minuten. Diese Nähe macht Gauting attraktiv für Firmen, die Pendler erreichen oder Nähe zur City brauchen.
Öffentlicher Verkehr
Der Bahnhof Gauting kann in ca. 10 Minuten fußläufig erreicht werden. Hier erreichen Sie die S-Bahn S6 und die Buslinien 906, 936, 949, 965, 966, 968 und X910.
Wirtschaftsstruktur & Nachfrage
Gauting weist eine gesunde lokale Wirtschaftsstruktur mit Mittelstand und steigender Beschäftigtenzahl in bestimmten Branchen auf; die Nachfrage nach Gewerbeflächen in der Gemeinde wird als hoch eingeschätzt (Planungen neuer Gewerbeflächen). Das zeigt, dass der Standort für Gewerbe allgemein gefragt ist.
MIKROANALYSE
An der Adresse ist aktuell gewerblich genutzte Fläche / Gastronomie — das bestätigt die Eignung für Laden/Gastronomie/Dienstleistung direkt am Platz. Solche Nutzungen ziehen Laufkundschaft an und stabilisieren Tagesumsatzpotenzial.
Frequenz & Sichtbarkeit
Der Hauptplatz ist das Ortszentrum: gute Sichtbarkeit, Fußgängeraufkommen (Ortskern, neben Rathaus/Sehenswürdigkeiten wie dem historischen E-Werk) und zentrale Verkehrsanbindung (Bushaltestellen, Nähe Bahnhof) steigern Passantenfrequenz. Das ist wichtig für Handels- und Dienstleistungsgewerbe.
Parkraum & Lieferlogistik
Im Gegensatz zu anderen Immobilien im Ortskern gehört zu dieser Immobilien sowohl eine Tiefgarage, als auch ein öffentlicher Parkplatz, der sowohl für Lieferanten als auch für Kunden und Mieter das Leben erleichtert. Solch ein Nutzungsmix stabilisiert die Nachfrage und erlaubt flexible Gewerbenutzungen (Büro, Laden, Gastro, Dienstleistungen).
Ausstattung
– Baujahr 1978
– Gebäude mit Mischnutzung: Gewerbe und Wohnen
– ca. 2.380,57 m² vermietbare Gesamtfläche, davon:
– ca. 781,81 m² Wohnfläche
– ca. 1.598,76 m² Gewerbefläche
– 10 Wohnungen
– 10 Gewerbeeinheiten
– 32 TG-Stellplätze: 14 Einzelstellplätze, 18 Duplex
– 8 Parkplätze im UG gehören zu der Gewerbeeinheit im EG (Supermarkt)
– Öffentlicher Parkplatz hinter dem Gebäude
Sonstiges
Gründe, warum Gauting ein guter Standort für Gewerbe ist
1. Sehr gute Anbindung an München – schnelle Erreichbarkeit der Landeshauptstadt (Zug 25–30 Min; Autobahn- / Straßenverbindungen) — Vorteil für Kunden, Geschäftsreisen und Arbeitskräfte.
2. Zentrale Lage im Ortskern – hohe Sichtbarkeit, Fußgängerfrequenz und bestehende Gastronomie/Einzelhandelsnutzung an der Adresse, Positiv für Laufkundschaft und Repräsentation.
3. Stabile lokale Nachfrage nach Gewerbeflächen – Gemeinde plant/erwartet Gewerbeflächenentwicklung; Unternehmen sind an Standorten wie Gauting interessiert.
4. Attraktives Einzugsgebiet – Gauting selbst und angrenzende Orte (z. B. Gilching, Planegg) mit über 20.000 Einwohnern in der Gesamtgemeinde.
5. Image und Lebensqualität – ruhige, wertstabile Wohnlage mit guter Infrastruktur: attraktiv für hochwertige Dienstleister, Büros oder Gastronomie mit Qualitätsanspruch.
Chancen
– Ausbau von Dienstleistungs- und Gastronomieangeboten durch konstante Nachfrage.
– Synergien mit Pendlerverkehr (S-Bahn) und lokalen Events/Markttagen am Hauptplatz.
– Gute Vermietbarkeit an regionale Firmen, Praxis- oder Büronutzung durch Nähe zu München.
Energieausweisangaben
- Enerigeausweistyp Verbrauchsausweis
- Energiekennwert 156 KWh(m²*a)
- Heizungsart Gas-Heizung
- Befeuerung / Energieträger Gas
Herzlichen Dank für Ihre Anfrage.
Wir werden diese so schnell wie möglich bearbeiten.



















